Moradia T3+1 junto praias | Garagem + logradouro privado | Terraço panorâmico sobre o mar

595 000€

  • 3
  • 3
  • 3
  • Usable: 156m2
  • Floor: 220m2
  • C.E.: A+
  • Year: 2025
  • Ref: 66304-TEAM60654

Location

Leiria, Peniche, Atouguia da Baleia, Alto do Veríssimo

Description

Entre o azul do Atlântico e a tranquilidade de um bairro recente, nasce esta moradia T3+1 moderna, com terraço panorâmico e vista de mar.
Com arquitetura contemporânea, garagem fechada, logradouro privado com churrasqueira e ótima exposição solar, é ideal para quem procura espaço, conforto e qualidade de vida.

Situada em zona de moradias novas, a poucos minutos das praias do Baleal (4 km), Consolação (6 km) e do centro de Peniche (7 km).
Excelentes acessos à A8 (20 km) e à Lourinhã (5 km).

220 m² de construção | Terreno 197 m² | 3 pisos | Sótão com arrumos e terraço.
Perfeita para viver junto ao mar ou como refúgio de fim de semana.

Contacte-nos e venha conhecer o local onde o seu novo lar pode começar.

Attributes

  • Vista mar
  • Vista Desafogada
  • Boa Exposição Solar

Divisions

Blueprints

Floor name: Rés-do-Chão

Division Area Note
Open Space 48.04m2
WC 3.42m2
Office 10.24m2

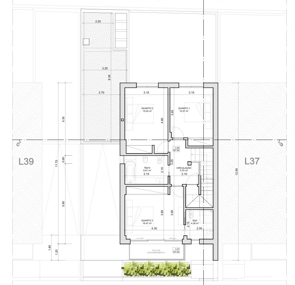
Floor name: 1º Andar

Division Area Note
Bedroom 15.02m2
Bedroom 12.57m2
WC 6.61m2
Suite 20.75m2

Floor name: 2º Andar

Division Area Note
Attic 14.95m2
Balcony