Santarém, Rio Maior, Rio Maior, Centro
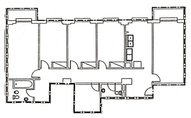
4 bedroom apartment refurbished in 2021, with 147m2 in the center of Rio Maior near the Roman ruins. 4th floor with new elevators.
A few minutes' walk from the Sports School.
It has two balconies with unobstructed views. A storage room in the hallway with 7m2, two bathrooms, modern semi-equipped kitchen.
Large hallway with two circulation areas.
Ideal apartment for a large family.